Поиск по блогу
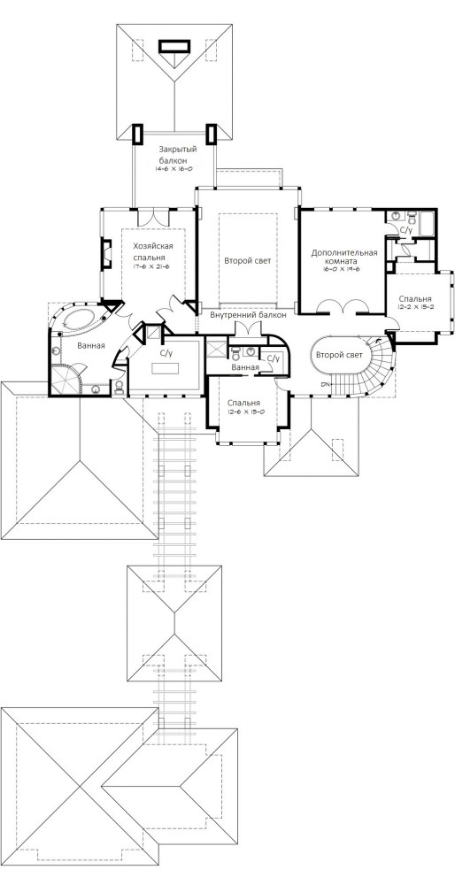
Проект особняка площадью 440 метров
развернуть
Постройка такого дома станет очень дорогим мероприятием, но не показать такую красоту мы не можем. От роскоши, уюта и масштабов возглас восхищения гарантирован.


Запись Проект особняка площадью 440 метров впервые появилась на сайте Roomble.com.
Опубликовано 15.03.2018 в 07:03
Эвелина * предлагает Вам запомнить сайт «ШПИЛЬКИ»









Комментарии